热烈祝贺欧麦朗苏州吴江海悦花园酒店热水项目完工
热烈祝贺欧麦朗苏州吴江海悦花园酒店热水项目完工,本次项目采用空气能热水设备为酒店提供热水支持。采用新式欧麦朗空气能热泵机组,为酒店543客房还有其他配套房间提供热水。需要满足24小时恒温供热水,即开即热。 我司根据酒店方要求为其设计了空气能热水系统方案。采用空气能热泵机...

热烈祝贺欧麦朗苏州吴江海悦花园酒店热水项目完工,本次项目采用空气能热水设备为酒店提供热水支持。采用新式欧麦朗空气能热泵机组,为酒店543客房还有其他配套房间提供热水。需要满足24小时恒温供热水,即开即热。 我司根据酒店方要求为其设计了空气能热水系统方案。采用空气能热泵机...

亚克力浴缸的正式名称是玻璃纤维增强塑料浴缸。反面覆上玻璃纤维,涂上特定树脂增强。浴缸表面先打磨处理再用调配好的釉在清洗干净处重复喷,直到看不到对接口。 亚克力浴缸生产形成胚料后,要进行加强树脂的粘结,通常是用不饱和聚酯树脂和玻璃纤维复合材料在浴缸的底部,这样形成的产品具...

在树脂砂铸造的工艺中,一些大个铸件在浇铸后铁水凝固时间是不相等,某些部位会存在热结点,这些热节点会产生热应力,造成铸件变形,裂纹等,疏松,冷隔,气孔等缺陷。为避免产生热节,一般会通过浇铸工艺、浇道结构的调整以及在热节处设置冷铁来消除热结的缺陷,使整个铸件的冷却符合顺序凝固的要求。...

1. 草帘棚膜土墙供暖方式 传统的草帘棚膜土墙供暖方式对草帘的厚度、棚膜的厚度及透光度和土墙厚度都有一定要求,只有做到温室大棚外的寒冷空气少进入温室,同时通过提高棚膜反射度和时间,这样才能使得温室大棚内的温度保持相对稳定,同时温室大棚内的瓜果蔬菜会发生大量的光合作用,释...

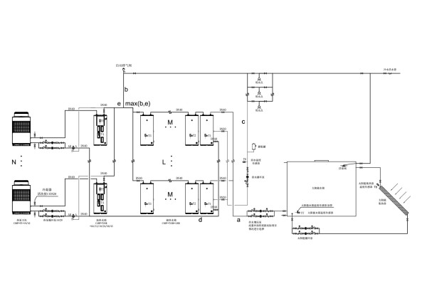
这套系统是开式集中式的太阳能集热系统和多水箱闭式空气能系统相结合。加大太阳能水箱可以增加太阳能的能效,增加储热水罐的储水量,同时水箱采用开式水箱从而减轻水箱自重带来的承重负荷。而供水水箱则采用分散式闭式多个小水箱,其优点在于加大用水量的同时,减少了屋面荷载。并且单个水箱占地面积小...

近几年全球都重视环境的治理,废水、废气的治理。要求企业废气、废水要达环保标准。很多相关企业都开始对生产设备,烘干设备,污水处理设备等改造。 我公司和多家水处理公司合作,提供生产中空纤维膜的烘干房和空气源热泵干燥设备,替换以往传统的电锅炉干燥,传统的电锅炉或者电加热设备...

项目概况:湖北(武汉)长江电气有限公司工地需要一套空气能热水系统,满足工人用水,安装在地面上,集中在晚上用水,与欧麦朗合作,安装一套全自动化智能控制的商用空气能热水系统。 机组配置:两台热泵机组+两个圆形水箱(详细机组配置咨询客服) 安装单位:江苏欧麦朗能源科...

复叠式热泵循环是将较大的总温差分割成两段或若干段,根据每段的温区选择适宜的制冷剂循环,然后将它们叠加起来,用低温级的冷凝热来供应高温级的蒸发负荷,从而使得高温级获取较高冷凝温度的方式;以两级复叠式热泵循环为例,它由高温级和低温级两部分组成,高温级使用中温制冷剂,低温级使用低温制冷...

传统的太阳能热水器,管道里有冷水,水压不稳定,出水小等问题。针对这个问题,欧麦朗采用“商用承压热水系统”,经过太阳能行业近几十年的发展,越来越多的厂家开始用承压热水系统来做热水工程。并得到广泛应用,特别是在连锁宾馆、酒店广泛应用,可以提供365天全天候智能化恒温恒压舒适热水。 ...

一、项目概况: 产品检测实验过程中,为了检测产品的性能及寿命,需用3-7度的冷水冲击,再用80-90的热水冲击。经过冷热水冲击实验后来判断产品是否合格。 二、项目要求及设备配置: 1、冷水: 供水量:20L~25L (可调) 水温...